Te koop Finca - Cortijo Costa Del Sol Guaro € 330.000,-
- Slaapkamers: 3
- Badkamers: 1
- Grond oppervlakte: 127 m²
- Zwembad: yes
- Tuin: yes
- Parkeren: no
(Referentie RSOR5224363)
Meer informatie TerugBeschrijving
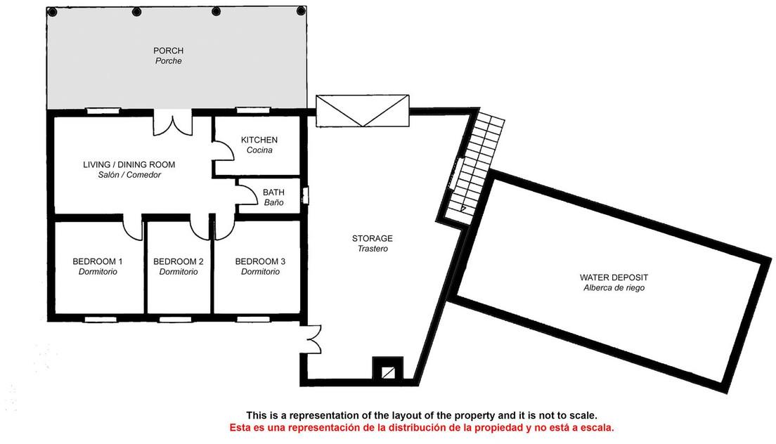
Prachtige finca te koop in Guaro, gelegen op een gedeeltelijk omheind perceel van 36.500 m², ideaal om te genieten van de rust van het platteland en de vele open ruimte. De woning beschikt over een woonhuis, een grote berging, een veranda, een zwembad en een wateropslag, evenals gebieden voor het telen van amandel- en olijfbomen. Huis: Het hoofdgebouw is gelijkvloers en heeft een dakterras (bereikbaar via een buitentrap). De begane grond bestaat uit: • Woon-eetkamer • Keuken • Badkamer • 2 slaapkamers + een derde kamer momenteel gebruikt als opslag • Berging Bijgebouwen en buitenruimtes: • Grote, onafhankelijke berging, zowel van binnen als van buitenaf toegankelijk. • Overdekte veranda, ideaal om van het buitenleven te genieten. • Zwembad van 50 m² en wateropslag van 24 m². Toegang: • Onverharde weg met wat hobbels en losse stenen, binnen het privépad van het terrein Nutsvoorzieningen: • Bronwater • Stadswater Deze finca combineert comfort, privacy en verbondenheid met de natuur en is daardoor ideaal als zomerresidentie, investering of agrarisch project.
Kenmerken
- Instelling: Land
- Orientatie: Noord
- Staat: redelijk, renovatie vereist
- Zwembad: privé
- Klimaatregeling: open haard
- Uitzicht: Bergen, Land
- Functies: Overdekt terras, privéterras, solarium, berging
- Meubels: optioneel
- Keuken: gedeeltelijk ingericht
- Tuin: privé
- Parkeren: Open, meer dan één, privé
- Hulpprogramma's: elektriciteit, drinkwater
- Categorie: Wederverkoop
Vul onderstaande gegevens in om meer informatie te ontvangen over deze eigendommen.
* Verplichte velden
EN - English
FR - Français
DE - Deutsch













